Bonaire

Make an Enquiry

    Bonaire

    • P.O.A
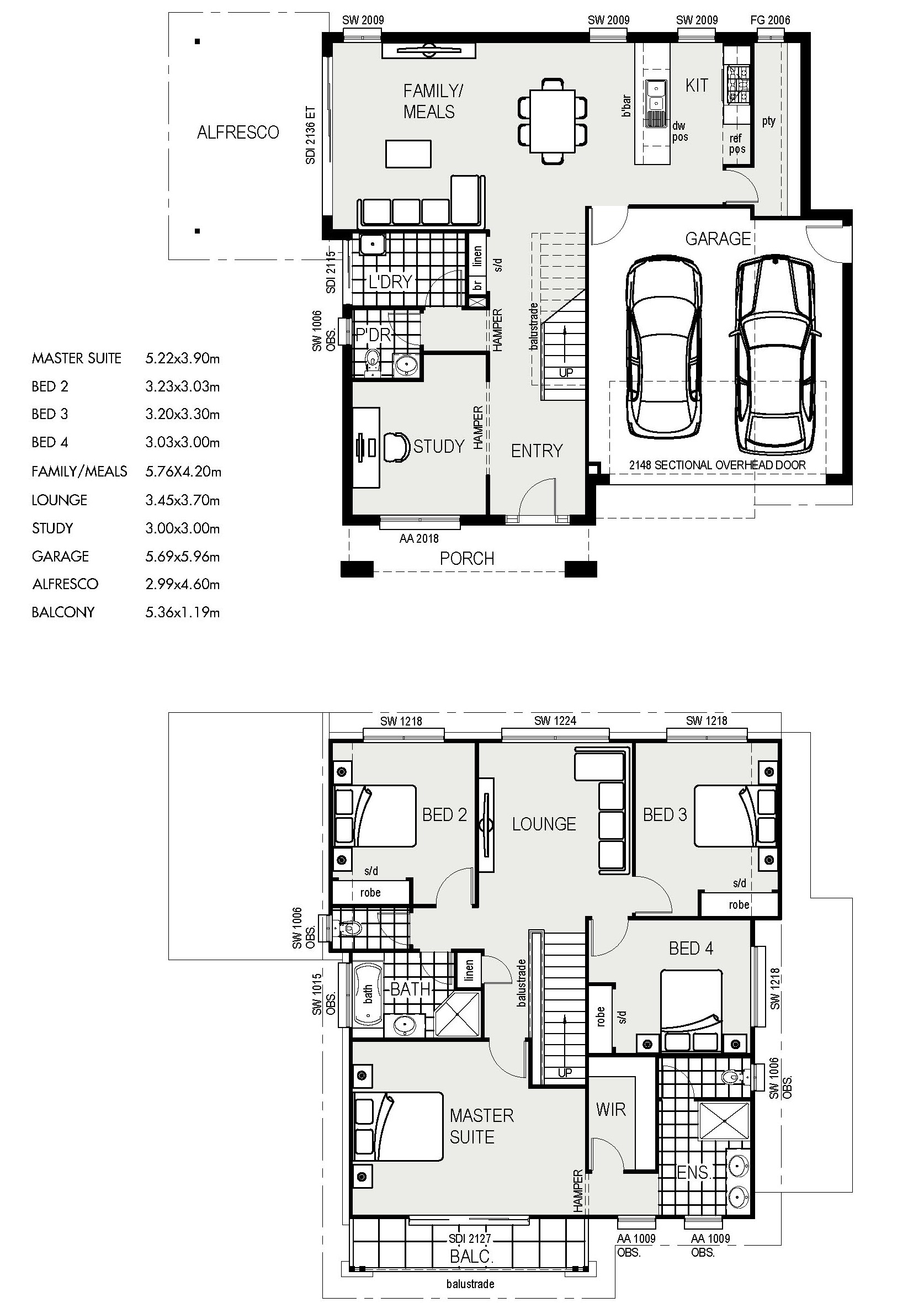
    The small footprint of the Bonaire makes this home ideally suited to larger sloping sites with a fall up to 3 metres or shallow square blocks. It features a massive master bedroom and upstairs living but is also available in either a rear master or, four bedroom and study version. Downstairs living and entertaining areas open onto a magnificent alfresco area.
    Size Range

    Available Size

    image

    Description:
    Area : 248.05sqm
    Squares : 26.701sqm
    Length : 13.122m
    Width : 15.320m
    Garages : 2

    Facades

    You may also like other homes

    Looking to get your dream house built?
    Let Indigo help you.

    Call 07 3319 3137

    Compare listings

    Compare
    Alinga
    • Alinga